Lukket

Det er med stor fornøjelse at vi deltager i byggeudstillingen Byg i centrum.  Vi har valgt at vise et klassisk vinkelhus men stadig et hus der karakteriserer Lasse Larsen Huse, hvilket betyder funkis og minimalisme.

Udvendig er facader opmuret i en grå mursten med lyse og mørke nuancer – B713 Silver Falcon fra Strøjer tegl – afsluttet med murkrone og tagnedløb i blank zink. Huset har store skydedørspartier i stue og køkken/alrum, der giver et fantastisk lysindfald fra syd. Kombinationen af mursten og det sorte træ i carport og det lille udhæng giver huset et eksklusivt og attraktivt udseende.

Perfekt til børnefamilien
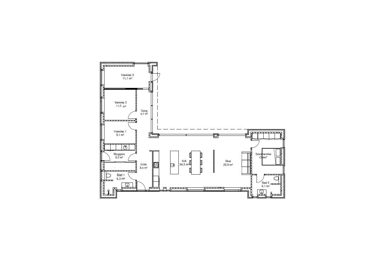
Via entreen har du adgang til en lækker og optimal indrettet villa med separat børneafdeling med 3 gode værelser samt stort bryggers og badeværelse, centralt og lyst placeret køkken/alrum i åben forbindelse med hyggelig stue kun adskilt af opmuret væg. I begge rum har du store skydedørspartier der vender mod syd og du har herved fornemmelsen af at være i et med haven. Forældreafdeling med soveværelse og skabsvæg samt eget bad ligger i forlængelse af stuen.  Overalt er materialevalget afstemt og skaber en god stemning. Et hus du føler dig hjemme i.

Fleksibilitet
Huset er tænkt som inspiration, og vi ved at jeres ønsker og krav samt jeres grund måske ligger op til noget helt andet, men vi håber at I har fået lyst til en snak om hvordan vi kan designe jeres drømmehus med udgangspunkt i jeres tanker og ideer.

Læs mere om byggeudstillingen her