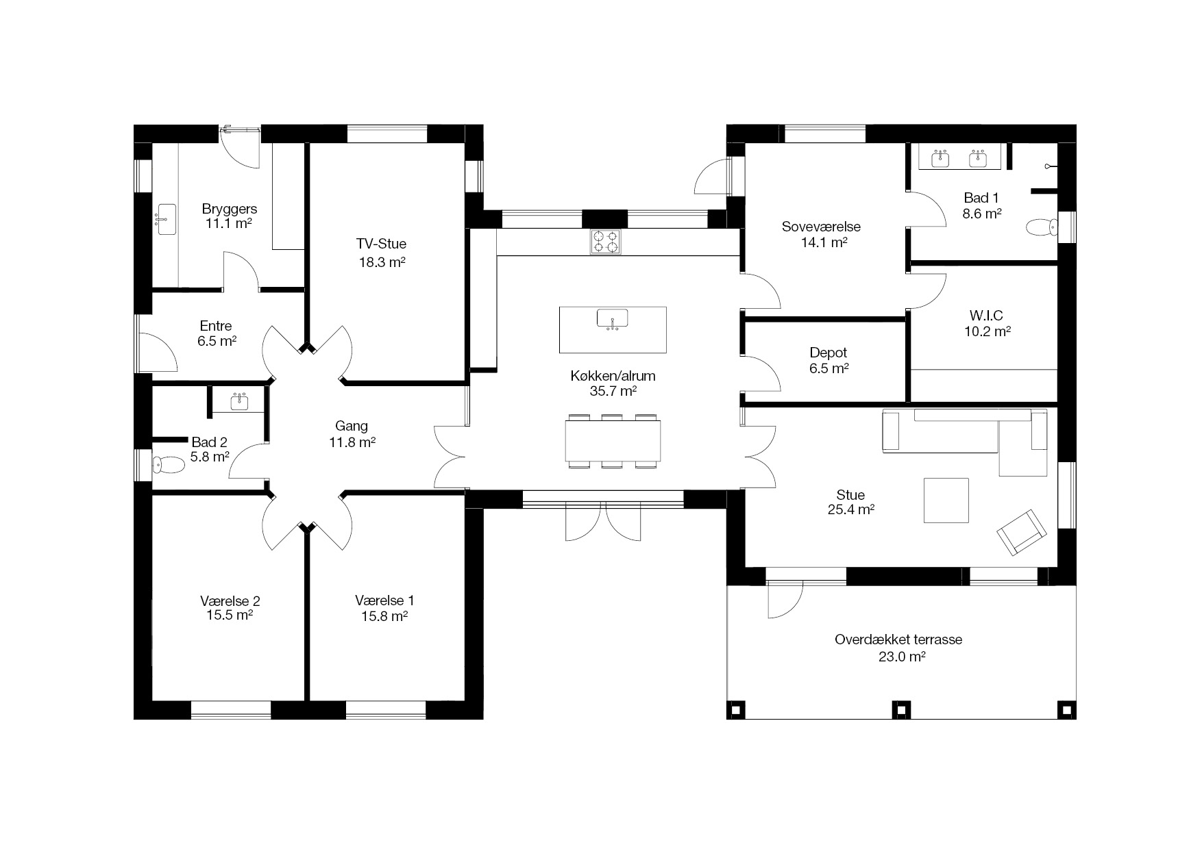
I dag er gårdhavehuset ofte synonym med et typisk dansk 1-familiehus. Huset er også kendt som “H-huset”, fordi det har en praktisk opdeling med et køkken/alrum som bindeled og samlingspunkt mellem en voksenafdeling og en børneafdeling. På den måde er gårdhavehuset ideelt for både den lille og den større familie.




En praktisk løsning
Husets praktiske opbygning betyder også, at der sikres en høj grad af privatliv overfor naboer og forbipasserende. Husets gårdhave/atriumgård ligger tillukket og intimt placeret mellem de to længer. Hos Lasse Larsen er gårdhavehuset et af vores kerneprodukter, hvor vi sætter en faglig ære i at skabe et trygt og velfungerende typehus, der passer til dine behov og drømme.
Oplev et gårdhavehus inden du beslutter dig
Du kan også besøge et af vores mange udstillingshuse over hele landet, inden du vælger dit nye hus og på den måde sikre dig, at det lever op til dine forventninger, drømme og behov. For det er én ting at se billeder af et hus på nettet, men noget helt andet at opleve det i virkeligheden. Det giver dig ro i maven at vide præcis, hvad du får.



Hos Lasse Larsen er der styr på alle faser i byggeriet. Vi har mere end 40 års erfaring med at styre et projekt sikkert igennem, derfor benytter vi kun anerkendte kontrakter med vores leverandører, som er udfærdiget i samarbejde med brancheorganisationen Dansk Byggeri. Det giver dig den største sikkerhed og beskyttelse.