Huset er solgt.
Vi går ikke på kompromis med hverken kvalitet, faglighed eller leveringssikkerhed. Kvalitet er præcis, hvad der kendetegner et ægte Lasse Larsen hus.
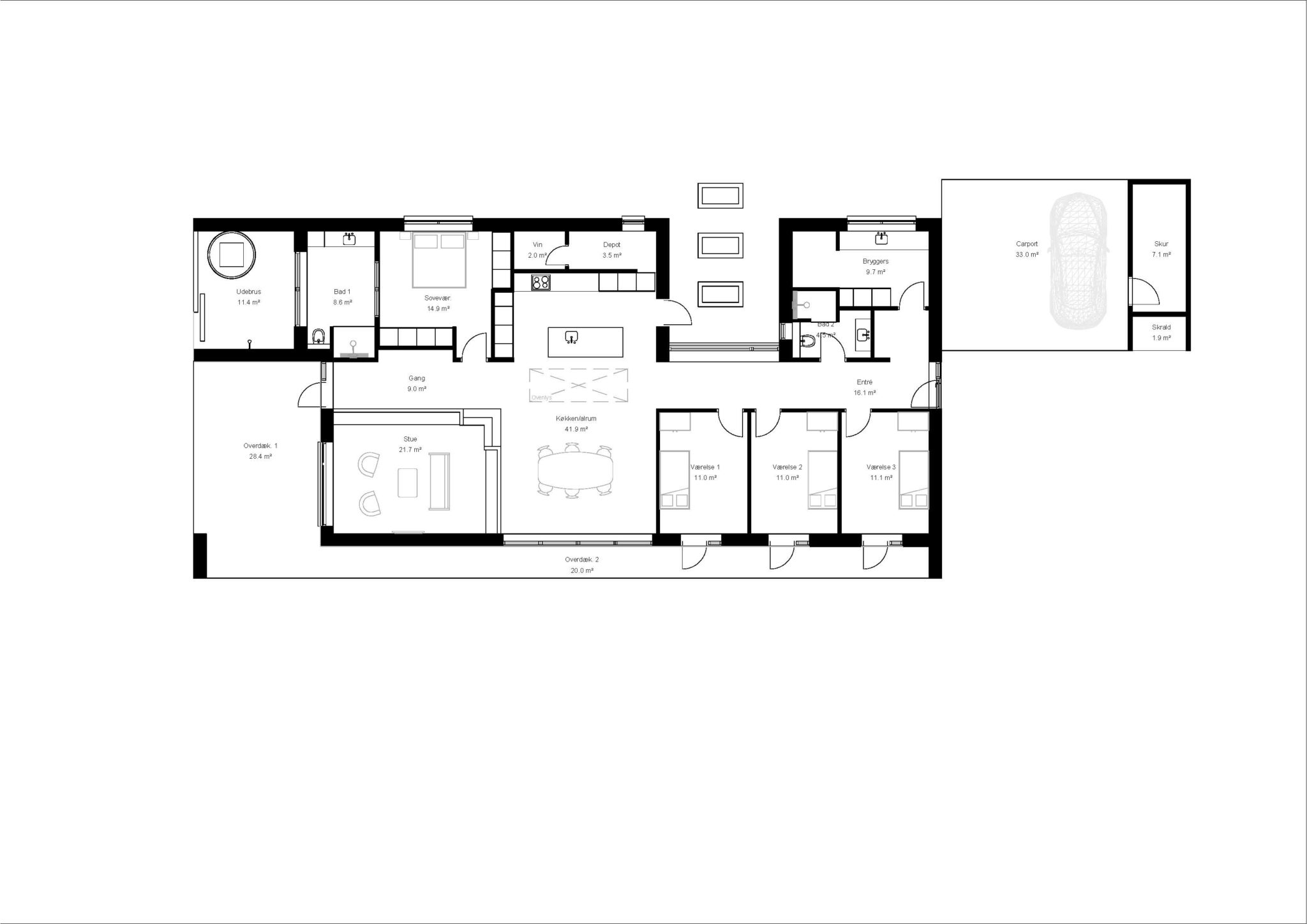
Du inviteres indenfor i entréen med arkitektoniske linjer, som tillader et kig igennem hele huset. Entréen byder både på opbevaringsplads og et flot lysindfald fra siddenichen, som giver huset en naturlig opdeling imellem forældre- og børneafdeling. Børneafdelingen er indrettet med 3 rummelige børneværelser og et badeværelse.
Køkken-alrummet er husets hjerte
Køkken-alrummet er omdrejningspunktet i dette hus og kan med sine 42 m2 rumme alt fra madlavning til vinsmagning. Bag det flotte HTH-køkken er der adgang til både depot- og vinrum. I køkkenet er der også direkte adgang til den charmerende urtehave, som gør, at kun fantasien sætter grænser for madlavningen. De store dobbeltskydedøre i køkken-alrummet giver adgang til terrassen, og når vejret tillader det, kan der åbnes op, så køkken-alrummet og terrassen går i ét. I år sætter vi nye standarder for ovenlysvinduer, da vi har valgt et 100×300 cm ovenlysvindue i køkken-alrummet.
En detalje, som ikke er til at overse, er den murede siddeniche langs den hævede stue, som indbyder til afslappede stunder, og som giver et råt udtryk til det stilrene funkishus. Siddenichen er muret i samme teglsten som facaden – L711 Premium Pacific fra Strøjer Tegl.
Bring udeliv indenfor
Badeværelset er et vigtigt rum i huset, som fortjener stor opmærksomhed. Vi har derfor i forældreafdelingen inviteret lyset indenfor med et stort skydeparti til et udendørs wellness område med både udebrus og en udendørs spa. Der er ikke længere nogen undskyldning for ikke at nyde livet i et nyt Lasse Larsen hus.
 
 
 
 
 
 
 
 
 
 
 
 
 
 
 
 
 
 
 
 
 
 
 
 
 
 
 











 
